Компания «НЕРАЗРУШАЮЩИЙ КОНТРОЛЬ» проектирует и производит передвижные лаборатории для неразрушающего контроля. Предлагаемые автолаборатории НК оснащаются самым надежным и качественным оборудованием, с помощью которого можно вести непрерывный контроль конструкций и механизмов в полевых условиях, в том числе и в условиях крайнего севера.
Мобильные лаборатории способны обеспечить контроль качества сварных соединений как трубопроводов, так и многих других сварных конструкций на различных стадиях их строительства, эксплуатации и ремонта. Возможен контроль исходных материалов, распределительной и запорной арматуры, а также визуальный контроль проверки сварных швов и оценка остаточного ресурса. При изготовлении передвижной лаборатории мы учитываем все пожелания представителей предприятия-заказчика по внутренней отделке, планировке и оснащению.
С помощью специалистов нашей фирмы вы сможете реально участвовать в доработке мобильной лаборатории под собственные нужды, оснащая их всеми необходимыми материалами и оборудованием (контрольно-измерительным и вспомогательным). Мобильная лаборатория может быть изготовлена под широкий круг задач. Прежде всего, это могут быть передвижные измерительные лаборатории, мобильные лаборатории контроля качества трубопроводов, передвижные испытательные лаборатории и передвижные лаборатории неразрушающего контроля. Все лаборатории полностью отвечают необходимым требованиям ГИБДД.
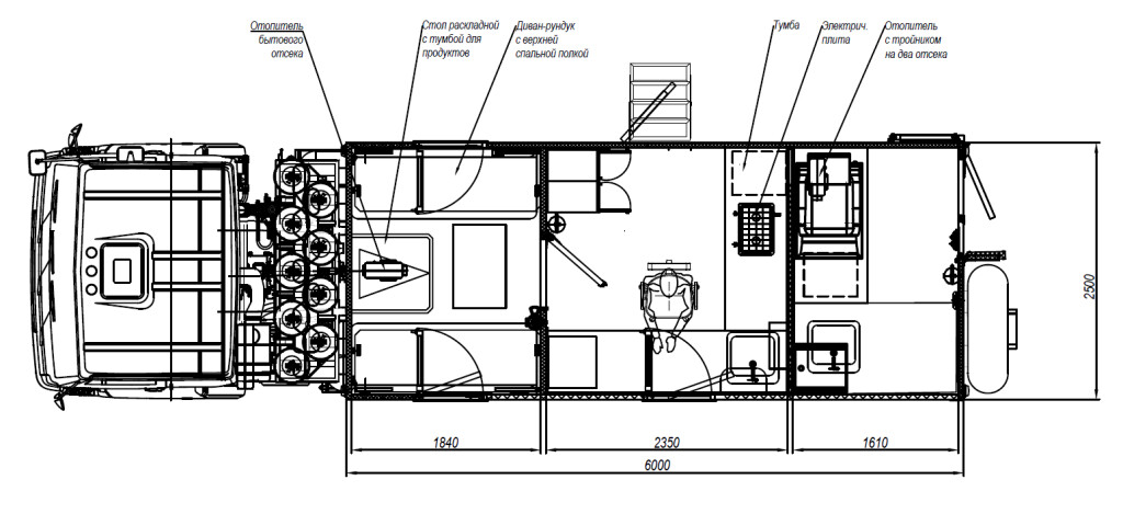
Планировка каждого проекта и комплектация оборудованием подбирается индивидуально, исходя из Ваших потребностей.




Поставляемые автолаборатории проходят скурпулезную предпродажную проверку всех агрегатов и узлов. Покупая передвижную лабораторию у нас, вы получаете надежный, качественный и эффективный инструмент для проведения неразрушающего контроля в самых сложных условиях. Конструкторская документация на мобильные лаборатории согласована с заводами-производителями базовых шасси, что обеспечивает полное гарантийное и послегарантийное обслуживание на их сервисных станциях.
На все мобильные лаборатории неразрушающего контроля предоставляется гарантия. Возможна быстрая доставка лабораторий в любой город как по России, так и в ближнее зарубежье. Все данные по срокам поставки и ценам на конкретную автолабораторию всегда можно получить у наших менеджеров.
Введите ваше Имя и Фамилию:
Отправитьили
Войдите, чтобы оставить комментарий